47 714 ₽/м²
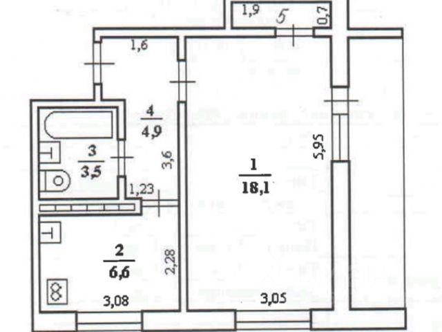
Однокомнатная квартира, в хорошем состоянии. 2 совершеннолетних собственника. в квартире остаются : встроенный зеркальный шкаф, диван, кухня, бытовая техника: холодильник, микроволновая печь, посудомоечная машина. Во дворе находится детский сад. Рядом школы.






















































































