


81 928 ₽/м²
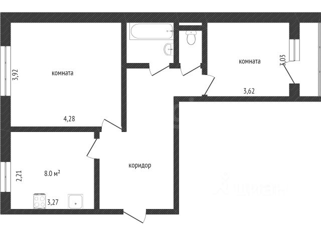
Продается уютная двухкомнатная квартира в Сыктывкаре на пр.Бумажников, 24. Общая площадь — 41.5 кв. м, жилая площадь — 24.6 кв. м, кухня — 8 кв. м. Квартира расположена на 7-м этаже 9-этажного кирпичного дома, построенного в 1996 году. Дом коридорного типа. Квартира в хорошем состоянии, готова для проживания. Встроенная кухня оборудована всей необходимой техникой. Планировка удобная и функциональная, комнаты изолированные, что обеспечивает дополнительный комфорт и личное пространство. Санузел совмещенный. Имеется лоджия, выход на которую из кухни. Дом ухоженный, с надежным и быстрым пассажирским лифтом. Двор обустроен, есть места для парковки автомобилей. Инфраструктура дома развивается, поэтому вы всегда будете в курсе происходящих изменений. В шаговой доступности от дома находятся школы, детские сады и магазины. Все необходимое для комфортной жизни рядом с вами. Хорошая транспортная доступность, что позволяет быстро добраться до любого района города. Квартира готова к продаже, все документы в порядке. Возможна ипотека. Если вы ищете надежное и уютное жилье в Сыктывкаре, это отличный вариант.Записывайтесь на удобное для вас время, и мы с радостью покажем вам ваш будущий дом! Продается квартира на проспекте Бумажников в городе Сыктывкар.


















































































