Мы используем куки-файлы. Соглашение об использовании
Помещение свободного назначения, 700 м²

Сдается помещение свободного назначения, 700 м²

Площадь700 м²
Этаж1 из 1
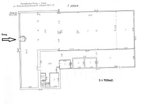
Сдается в аренду торговое помещение 700 м2 свободного назначения с огромной парковкой на 100 машин. Парковка входит в стоимость аренды. Адрес: г. Ухта, ул. Железнодорожная, 48, строение 37. Отдельно стоящее здание, общая площадь 700м2, 1 этаж. Есть возможность поделить площадь на несколько арендаторов: 140м2, 260м2, 450м2. Высота потолков . Общая электрическая мощность 45 кВт. Имеется 3 дополнительных входа: два со дворовой части, один с фасадной. Витринное остекление с фасадной стороны. Приточно-вытяжная вентиляция, кондиционирование. Высокий транспортный трафик. Проведены все центральные коммуникации. Свет, тепло, вода. Свой узел учета тепла. Большая бесплатная парковка на 100 автомобилей: 2258 м2 + 193м2 = 2451 м2, есть возможность огородить ее забором и использовать землю для стоянки автомобилей, например, автосалон. Аренда 500 руб/м2, за 700м2 сумма аренды составит 350 000 руб/мес. При делении площади на нескольких арендаторов сумму аренды уточняйте дополнительно. Коммунальные расходы не включены в сумму аренды, оплачиваются дополнительно.
lock

Войдите или зарегистрируйтесь
для просмотра информации

Просматривайте условия сделки и всю информацию об объекте
Сохраняйте фильтры в поиске и не вводите заново
Доступ к избранному с любого устройства
Неограниченное добавление в избранное
Позвоните автору
Вам ответят на все вопросы
Остались вопросы по объявлению?
Позвоните владельцу объявления и уточните необходимую информацию.
  • Инфраструктура
  • Похожие рядом
  • Год постройки1989
  • Тип зданияОтдельно стоящее здание
  • Площадь участка0,25 га
  • Общая площадь700 м²
  • Статус участкаВ собственности
Приточная вентиляция
Местное кондиционирование
Центральное отопление
Сигнализация
Помощь надёжных риелторов
Риелтор партнёр Циан поможет купить или продать любую недвижимость
Автор объявления
ID 99866417
  • 3 года 2 месяца на Циане
  • 350 000 ₽/мес.

    Прямая аренда (от года), минимальный срок аренды 11 месяцев, доступны арендные каникулы, предоплата за 1 месяц

    4 679 $/мес.
    3 983 /мес.
    Цена за метр
    6 000 ₽ в год
    Налог
    НДС не включен
    Комиссия
    нет
    Коммунальные платежи
    не включены
    Эксплуатационные расходы
    не включены
    Автор объявления
    ID 99866417