Мы используем куки-файлы. Соглашение об использовании
Площадь250 м²
Этаж2 из 2
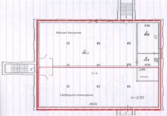
Сдается универсальное помещение на 2 этаже ТЦ "Парма" по ул. Комсомольская д.19 в г. Печора. Основной арендатор - МАГНИТ: 1 этаж - Магнит Продукты, 2 этаж - Магнит Косметик. Вход в помещение рядом с входом в "Магнит-Косметик". Большой автомобильный и пешеходный трафик, парковка на 50 машиномест, высокие потолки 4 м, возможность разместить рекламу на фасаде ТЦ, хороший ремонт под торговое помещение. Возможно дополнительно установить грузовой лифт на 2-ой этаж и приточно-вытяжную вентиляцию при долгосрочной аренде, есть полноценный санузел. Возможные варианты использования помещения: Бьютти салон или кабинеты, ПВЗ Озон и Вайлдберриз, Салон одежды, Студия танцев, Школа языковая, Уентр детского творчества, Аптеки, Пиццерия, Семейный ресторан с детской комнатой, Кафе, Суши-бар, Гриль-бар и другое. Возможны арендные каникулы и др. варианты. Звоните!
lock

Войдите или зарегистрируйтесь
для просмотра информации

Просматривайте условия сделки и всю информацию об объекте
Сохраняйте фильтры в поиске и не вводите заново
Доступ к избранному с любого устройства
Неограниченное добавление в избранное
Позвоните автору
Вам ответят на все вопросы
Остались вопросы по объявлению?
Позвоните владельцу объявления и уточните необходимую информацию.
  • Инфраструктура
  • Похожие рядом
  • Тип зданияТорговый центр
  • Площадь участка0,1 га
  • Общая площадь1 000 м²
  • Статус участкаВ собственности
Естественная вентиляция
Местное кондиционирование
Центральное отопление
Гидрантная система пожаротушения
Помощь надёжных риелторов
Риелтор партнёр Циан поможет купить или продать любую недвижимость
СобственникID 17508513
  • Предоставил паспорт
112 500 ₽/мес.

Прямая аренда (от года), минимальный срок аренды 11 месяцев, доступны арендные каникулы, обеспечительный платёж 1 ₽, предоплата за 1 месяц

1 538 $/мес.
1 304 /мес.
Цена за метр
5 400 ₽ в год
Налог
УСН
Комиссия
нет
Коммунальные платежи
не включены
Эксплуатационные расходы
включены
СобственникID 17508513
  • Предоставил паспорт