Мы используем куки-файлы. Соглашение об использовании
Помещение свободного назначения, 239,9 м²

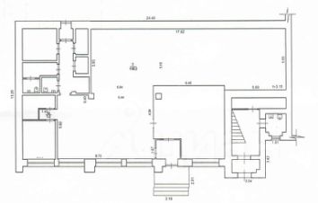
Сдается помещение свободного назначения, 239,9 м²

Площадь239,9 м²
Этаж1 из 2
Сдается в аренду помещение с отдельным центральным входом и запасным входом. Здание примыкает к торцу дома. Центральное отопление, вода, канализация. Центр города. Хорошая проходимость. Есть парковка.
lock

Войдите или зарегистрируйтесь
для просмотра информации

Просматривайте условия сделки и всю информацию об объекте
Сохраняйте фильтры в поиске и не вводите заново
Доступ к избранному с любого устройства
Неограниченное добавление в избранное
Позвоните автору
Вам ответят на все вопросы
Остались вопросы по объявлению?
Позвоните владельцу объявления и уточните необходимую информацию.
  • Инфраструктура
  • Похожие рядом
  • Тип зданияСвободное
  • Площадь участка0 га
  • Общая площадь239,9 м²
  • Статус участкаВ собственности
Центральное отопление
Помощь надёжных риелторов
Риелтор партнёр Циан поможет купить или продать любую недвижимость
СобственникID 139123720
    263 890 ₽/мес.

    Прямая аренда (от года), минимальный срок аренды 12 месяцев, доступны арендные каникулы, предоплата за 1 месяц

    3 728 $/мес.
    3 169 /мес.
    Цена за метр
    13 200 ₽ в год
    Налог
    УСН
    Комиссия
    нет
    Коммунальные платежи
    не включены
    Эксплуатационные расходы
    не включены
    СобственникID 139123720