Мы используем куки-файлы. Соглашение об использовании
Помещение свободного назначения, 130 м²

Сдается помещение свободного назначения, 130 м²

Площадь130 м²
Этаж4 из 4
ПомещениеСвободно
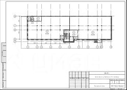
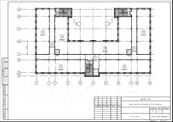
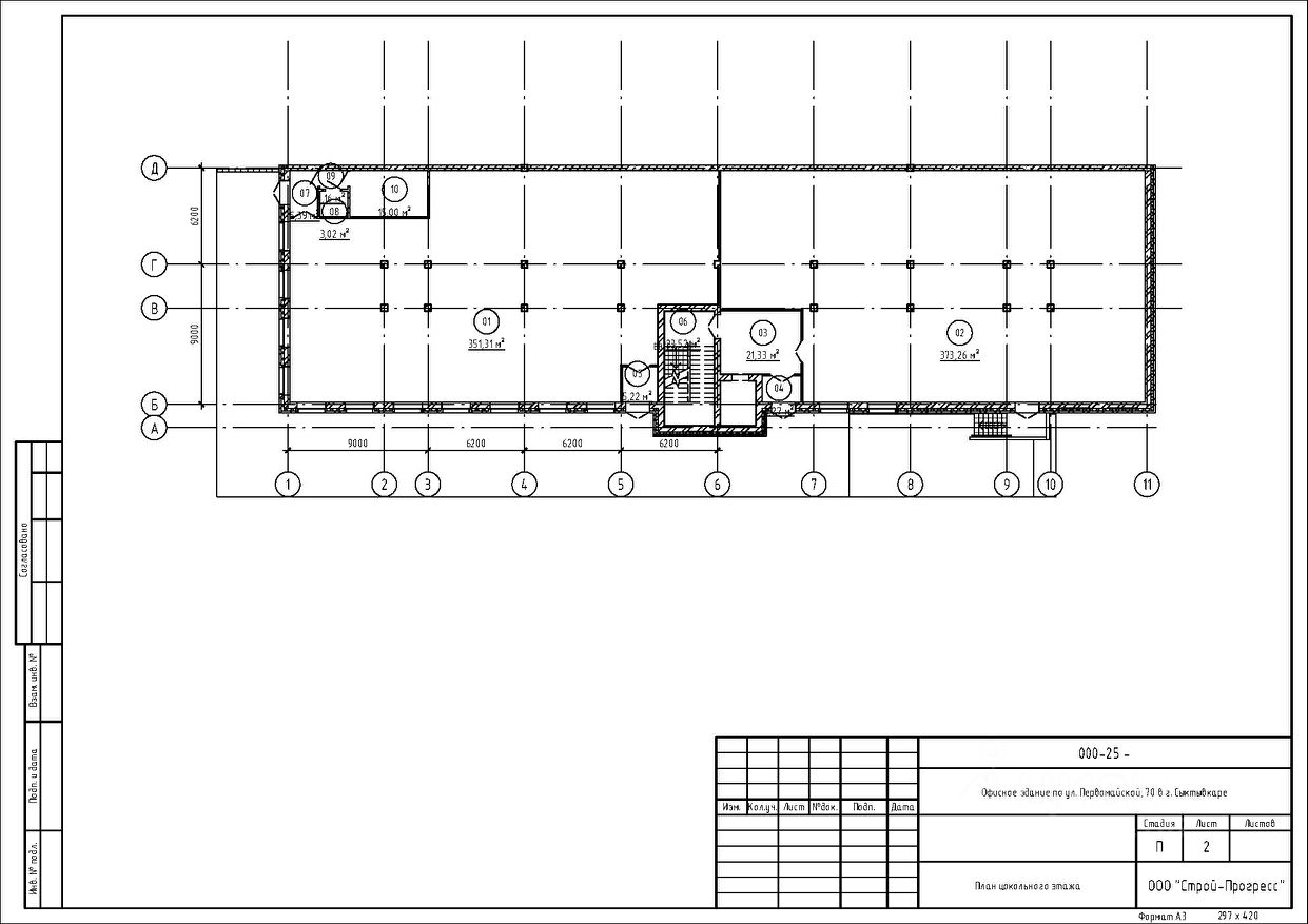
Предлагаем Вам рассмотреть возможность размещения Вашей организации на условиях долгосрочной аренды в проектируемом 3-х этажном здании общей площадью 3800 м2 и 800 м2 в цокольном этаже, расположенном по адресу: г. Сыктывкар, ул. Первомайская, д.70. Планируемый срок ввода 2 квартал 2027 года. На этапе строительства здания возможно сделать планировку и инженерные коммуникации под арендатора. Стоимость аренды от 700 руб. за 1 кв. м в месяц в зависимости от количества взятых в аренду площадей. Помещение будут сдаваться от 130 м2. Помещения хорошо подойдут под медицину, гостиницу, школу. Цокольный этаж под кафе, ресторан или тренажёрный зал. Планировка прилагается.
lock

Войдите или зарегистрируйтесь
для просмотра информации

Просматривайте условия сделки и всю информацию об объекте
Сохраняйте фильтры в поиске и не вводите заново
Доступ к избранному с любого устройства
Неограниченное добавление в избранное
Позвоните автору
Вам ответят на все вопросы
Остались вопросы по объявлению?
Позвоните владельцу объявления и уточните необходимую информацию.
  • Инфраструктура
  • Похожие рядом
  • Общая площадь130 м²
Приточная вентиляция
Местное кондиционирование
Центральное отопление
Гидрантная система пожаротушения
Помощь надёжных риелторов
Риелтор партнёр Циан поможет купить или продать любую недвижимость
Автор объявленияАлександр Смирнов
  • Документы проверены
  • 1 год на Циане
  • 2 объявления
  • 91 000 ₽/мес.

    Прямая аренда (от года), минимальный срок аренды 11 месяцев, доступны арендные каникулы, предоплата за 1 месяц

    1 197 $/мес.
    1 015 /мес.
    Цена за метр
    8 400 ₽ в год
    Налог
    НДС включен: 16 380 ₽
    Комиссия
    нет
    Коммунальные платежи
    не включены
    Эксплуатационные расходы
    включены
    Автор объявленияАлександр Смирнов
    Документы проверены