Мы используем куки-файлы. Соглашение об использовании
Аукцион

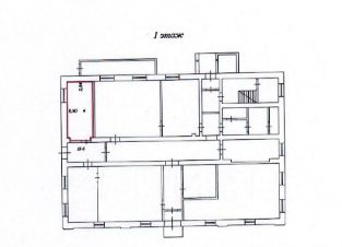
Продается офис, 14,8 м²

Площадь14,8 м²
Этаж1 из 2
Код лота: 62C46C9-4001-8192-2. Реализуется на торгах. К реализации на торгах в электронной форме по приватизации государственного имущества, находящегося в собственности Республики Коми, предлагается помещение, назначение: нежилое, площадью 14, 8 кв. м, этаж: 1, кадастровый номер 11:18:0605003:942, расположенное по адресу: Республика Коми, г. Инта, ул. Геологическая, д. 5а, пом. Н-6. Ограничение прав и обременение объекта недвижимости: не зарегистрировано. На дату объявления торгов Имущество закреплено на праве оперативного управления за ГКУ Республики Коми "Дирекция по содержанию казенного имущества Республики Коми", в случае состоявшихся торгов Имущество изымается Собственником из оперативного управления до даты заключения договора купли-продажи Имущества. Местонахождение и транспортная доступность: Объект расположен на 1-м этаже здания 1958 г. п. Здание находится в западном районе города, в окружении многоквартирных жилых домов, рядом с Дворцом спорта. Подъезд к помещению возможен с ул. Гагарина или с ул. Западной. Расстояние от центра города до объекта составляет 3, 5 км. Факторы инвестиционной привлекательности: - возможность приобретения помещения для организации пункта выдачи, арендного бизнеса; - возможность создания объектов торговли, социально-бытового обслуживания; - удачное местоположение в жилом районе с многоэтажной застройкой. В данной локации реализуется 3 группы помещений, находящихся в одном здании. Полный перечень имущества см. в Информационном сообщении на ЭТП. Торги проводятся на электронной площадке Лот-онлайн. ру, код процедуры 62C46C9-4001-8192. https://catalog. lot-online. ru/index. php?dispatch=products. view&product_id=1597568
АукционОбъект реализуется посредством электронных торгов. Конечную информацию об оплате, дополнительных платежах и условия заключения договора смотрите в документах извещения к лоту, на сайте электронной торговой площадки.
lock

Войдите или зарегистрируйтесь
для просмотра информации

Просматривайте условия сделки и всю информацию об объекте
Сохраняйте фильтры в поиске и не вводите заново
Доступ к избранному с любого устройства
Неограниченное добавление в избранное
  • Инфраструктура
  • Похожие рядом
  • Общая площадь14,8 м²
Помощь надёжных риелторов
Риелтор партнёр Циан поможет купить или продать любую недвижимость
Документы проверены
Начальная цена, аукцион
23 143 ₽
308 $
262
Цена за метр
1 564 ₽
Налог
НДС включен: 4 173 ₽
Агентство недвижимости
Документы проверены
На Циан
6 лет
Объектов в работе
577