Мы используем куки-файлы. Соглашение об использовании
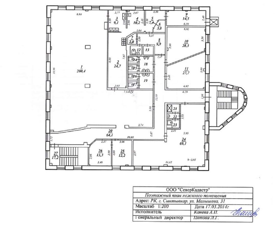
Помещение свободного назначения, 577,1 м²

Продается помещение свободного назначения, 577,1 м²

Площадь577,1 м²
Этаж3 из 3
Арт. 133530169 Прошу читать Внимательно!!! Продаётся Помещение с Долей Земельного участка, ул. Малышева 31, весь ТРЕТИЙ этаж. -Площадь помещения на 3м этаже: 577.1 кв.м. -Доля Земельного участка обсуждается при Покупке. Инфраструктура: Помещение находится в центральной части микрорайона ОРБИТА, удобное место расположение в шаговом доступе для населения, большая площадь парковочных мест. Продажа осуществляется по двум вариантам: Как продажа помещения под любой вид деятельности. Помещение имеет (запасные пожарные выходы, тех помещения с лифтом для общепита, офисные помещения, санузлы, большое количество мокрых точек). Либо Продажа с АРЕНДНЫМ бизнесом. С полностью готовым и оборудованным бизнесом (частично фото приложено). Подробности обсуждаем с заинтересованными покупателями. В продаже по этому адресу 2 помещения: ВТОРОЙ и ТРЕТИЙ этажи. Если вы покупаете оба этажа, стоимость помещений с долей ЗУ обговаривается с приятным торгом. Покупка по отдельности: 2й этаж 910,3 кв.м., с долей ЗУ = 35 000 000 рублей. 3й этаж 577,1 кв.м., с долей ЗУ = 20 000 000 рублей. Все документы в порядке и готовы к сделке. Покупка возможна в Ипотечный Кредит, по фиксированной ставке.
lock

Войдите или зарегистрируйтесь
для просмотра информации

Просматривайте условия сделки и всю информацию об объекте
Сохраняйте фильтры в поиске и не вводите заново
Доступ к избранному с любого устройства
Неограниченное добавление в избранное
Позвоните автору
Вам ответят на все вопросы
Остались вопросы по объявлению?
Позвоните владельцу объявления и уточните необходимую информацию.
  • Инфраструктура
  • Похожие рядом
  • Общая площадь577,1 м²
Центральное отопление
Помощь надёжных риелторов
Риелтор партнёр Циан поможет купить или продать любую недвижимость
20 000 000 ₽
280 224 $
238 980
Цена за метр
34 657 ₽
Налог
НДС не включен
Агентство недвижимости
Документы проверены
На Циан
8 лет
Объектов в работе
188