Мы используем куки-файлы. Соглашение об использовании
Только на Циан

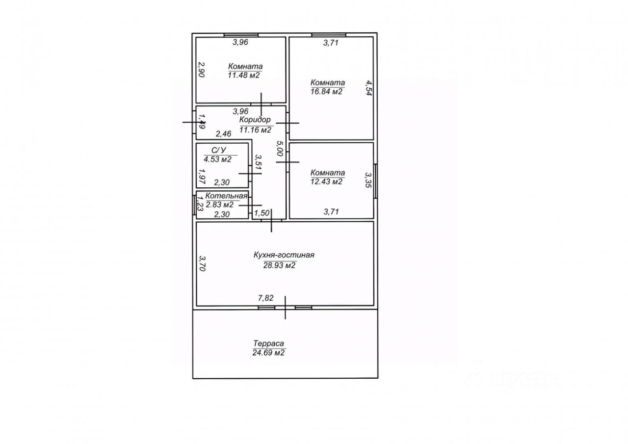
Продается 1-этажный дом, 120 м²

Общая площадь120 м²
Участок7 сот.
Материал домаДеревянный
Этажей в доме1
Год постройки2026
Арт. 134695739 Новый Дом из бруса на 4метровых ж/б сваях с земельным участком 7 соток в собственности от застройщика. Подходит под семейную ипотеку под 6%.
Позвоните автору
Вам ответят на все вопросы

О доме

Площадь

120 м²

Материал дома

Деревянный

Количество этажей

1

Количество спален

3

Год постройки

2026

Об участке

Площадь

7 сот.

Статус участка

Индивидуальное жилищное строительство

Коммуникации и удобства

Санузел

1 в доме

Канализация

Есть

Водоснабжение

Скважина

Отопление

Автономное газовое

Электричество

Есть

Газ

Есть

Спросите умного помощника
Получите экспертное мнение о жилье

Расположение

Подпишитесь на объявления в этой локации
Мы сообщим, как только поблизости появится что‑нибудь новенькое
Ипотечный калькулятор
  • Базовая
  • Семейная
  • ИТ-ипотека
  • 20%
  • 30%
  • 40%
  • 50%
лет
  • 10 лет
  • 20 лет
  • 30 лет
Загружаем предложения от застройщика и банков
Хотите продать недвижимость?Разместите объявление на ЦианРазместить
4 900 000 ₽
Цена за метр
40 833 ₽/м²
Ипотека
возможна
Агентство недвижимости
Документы проверены
На Циан
8 лет
Объектов в работе
196