


136 632 ₽/м²
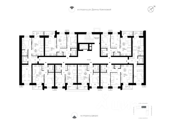
Квартира от застройщика в тёплом кирпичном 9-этажном доме в историческом центре. Подходит под семейную ипотеку. Ключи — IV кв. 2026 г. Прямая сделка с застройщиком — гарантия безопасности. Однокомнатная квартира свободной планировки. Просторная кухня-столовая (19,4 м²) с французским выходом на лоджию (5 м²) с панорамным остеклением. Места для систем хранения, большой совмещенный с/у. Вид в сторону ул. Интернациональной. На площадке от 2 до 9 квартир. Сквозные подъезды на уровне земли, светопрозрачные входные группы, гостеприимные холлы с колясочными. Скоростной лифт. Тихий, безопасный двор с закрытой территорией, системой видеонаблюдения, ландшафтным дизайном, игровым и спортивным оборудованием. В ЖК "Оникс" толщина кирпичной кладки до 380 мм, общая толщина стен с вентфасадом — 680 мм. Высота потолков на стандартном этаже — 2,8 м, на 8 и 9 этажах с хайфлэтами — 3 м. Окна с низкими подоконниками (60 см от пола) и энергоэффективным остеклением, профиль Deceuninck 71 мм. Низкие коммунальные платежи благодаря автономной газовой котельной и классу энергоэффективности дома А++. К квартире подведены все коммуникации. Установлены качественные толстые (80 мм) металлические двери, экран для кондиционера, современные радиаторы, автоматическая передача показателей со счётчиков на воду, тепло, электричество в УК. IP-домофония и мобильное приложение жителя. ИНФРАСТРУКТУРА Супермаркеты, аптеки, заведения и учреждения сферы услуг, детские сады, школы, спортклубы, Кировский парк. ПОКУПКА Персональный специалист по недвижимости в любом из офисов продаж СКАТа бесплатно сопроводит всю сделку: - проконсультирует и забронирует понравившуюся вам квартиру; - поможет подобрать ипотечную программу и оформить заявку в банк; - поможет решить вопросы с использованием маткапитала и других субсидий; - регистрация недвижимости в соответствии с 214 ФЗ. 1-комнатная квартира до 18 млн. рублей в республике Коми.






















































































































