


114 823 ₽/м²
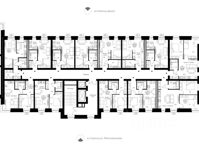
Однокомнатная квартира свободной планировки. Просторная кухня-столовая (18,9 м²) с выходом на лоджию (3,1 м²). Места для систем хранения, большой совмещенный с/у. Вид во двор. "Квартира от застройщика в уникальном разноуровневом тёплом кирпичном доме в Орбите. Подходит под семейную и льготную ипотеку. Ключи — IV кв. 2027г. Прямая сделка с застройщиком — гарантия безопасности. Секция из 14-ти этажей, до 8 квартир на площадке. Верхний этаж — хайфлэты — квартиры с увеличенными до трёх метров потолками. Подъезд на уровне земли, светопрозрачная входная группа, гостеприимный холл с колясочной. Два скоростных лифта. Тихий, безопасный двор с закрытой территорией, системой видеонаблюдения, ландшафтным дизайном, игровым и спортивным оборудованием. Парковка за пределами двора. В ЖК "Планета 9" толщина кирпичной кладки 510 мм, общая толщина стен с вентфасадом — 810 мм. Улучшенная звукоизоляция благодаря несущим стенам, примыкающим к широким коридорам. Высота потолков — 2,8 м. Окна с низкими подоконниками (60 см от пола) и энергоэффективным остеклением. К квартире подведены все коммуникации. Установлены качественные толстые (80 мм) металлические двери, экран для кондиционера, современные радиаторы, автоматическая передача показателей со счётчиков. Домофония и мобильное приложение жителя. Низкие коммунальные платежи благодаря классу энергоэффективности А. ИНФРАСТРУКТУРА Супермаркеты, аптеки, заведения и учреждения сферы услуг, детские сады, школы, спортклубы, лесопарк. ПОКУПКА Персональный специалист по недвижимости в любом из офисов продаж СКАТа бесплатно сопроводит всю сделку: - проконсультирует и забронирует понравившуюся вам квартиру; - поможет подобрать ипотечную программу и оформить заявку в банк; - поможет решить вопросы с использованием маткапитала и других субсидий; - регистрация недвижимости в соответствии с 214 ФЗ." Продается 1-комнатная квартира до 6 млн. рублей в республике Коми.







































































































