58 271 ₽/м²
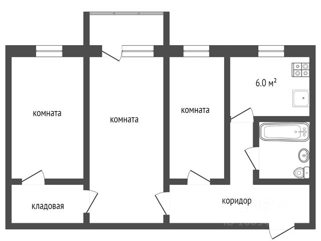
Продается четырехкомнатная квартира, расположенная на 1 этаже 5-этажного панельного жилого дома 1976 года постройки, по адресу: Республика Коми, г. Ухта, пр-кт Космонавтов, д.25 Общая площадь - 58,4 кв. м Жилая площадь - 40,6 кв. м Площадь кухни - 6,9 кв. м Высота потолков - 2,5 м Санузел - раздельный Тип дома - панельный Открытая парковка возле дома. Дом расположен в тихом районе города с развитой инфраструктурой: в шаговой доступности магазины, аптеки, школа, детский сад, остановка общественного транспорта. В доме проведены центральное отопление, электроснабжение, ХВС, ГВС, газоснабжение. Способ продажи: прямая продажа, покупка за счет собственных/кредитных средств. Сделка может быть зарегистрирована с использованием сервиса электронной регистрации. Условия реализации можно уточнить по телефону. Продам квартиру на проспекте Космонавтов в городе Ухта.


















































